1.設計費
基本料金 : 実施設計図
- 基本設計費:「1800円/㎡」 または 「建築費の1%」
- この料金には、配置場所、配灯寸法まで記入した「施工指示書」までの設計費が含まれます。

〈施工指示書・実施設計図〉
減算料金 ①(照明手法の計画・ラフ図): 基本料金の ×0.3

- 基本計画:照明計画の方向性を決めるための計画案。(間接照明の導入検討や照明器具の種類検討)基本料金の30%
手書き対応になりますが、間接照明、ダウンライト、スポットライトなど建築に絡む照明計画において照明器具の種類を提案します。照明器具の選定が必要な場合は、基本設計で対応します。
減算料金 ②(器種選定・配灯計画): 基本料金の ×0.7

- 基本設計:実施に向けた方向性を決めるための設計。(配灯計画や照明器具の器種選定)基本料金の70%
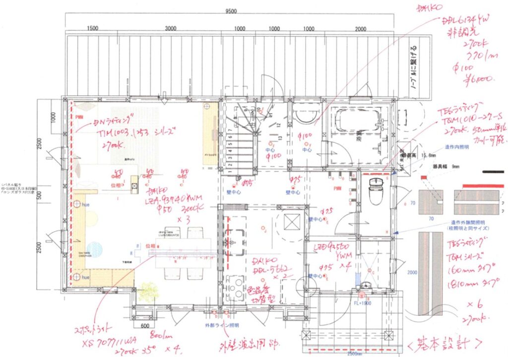
照明器具のおおよその配灯位置、照明器具の選定(メーカーの品番指定)までが「基本設計」の作業内容。一番多いパターンがこのプラン。この基本設計を基に、建築側の設計士やIC(インテリアコーディネーター)との打ち合わせ伴走を行うイメージ。最終決定は設計士やICの考えやプランに合わせることが目的のプラン。
※ 基本設計では、間接照明などの建築に絡むことが多いので、打ち合わせ時期は早ければ早いほど、建築側も施主側も計画段階の自由度が効く。着工後になると、電気配線やスイッチ計画の制約が徐々に多くなるため、変更には内装大工、電気工事、現場監督の共通認識を合わせる必要がある。
- 大幅な設計変更:変更影響範囲の面積に応じて再計算(例:変更部分の面積×2300円/㎡)
特別料金
- 特急対応料金:通常よりも短納期の場合、基本料金に20~30%増 (翌日~3日 30%)(4日~7日 20%)
- 早期依頼料金:通常よりも納期に余裕がある場合、基本料金の20%割引 (納品まで約60日以内)
変動料金については、物件の性格やご要望に応じて見積りします
2. 係数
設計事務所・デザイン事務所・工務店など:1.3~1.5
いわゆる「プロ」の方は、1.設計費の基本料金(減算料金含む) にこの係数が乗じます。
インテリア照明プランニング
- 100㎡未満まで ×1.5
- 100㎡以上200㎡未満 ×1.4
- 200m以上500㎡未満 ×1.3
例)100㎡ 1800×100×1.5 = 270,000円
基本設計まで(器具選定)であれば × 0.7 189,000円
エクステリアプランニング 「基本単価1,000円/㎡」
- 200㎡未満まで ×0.5
- 200㎡以上500㎡未満 ×0.4
- 500m以上1000㎡未満 ×0.3
例)200㎡ 1000×200×0.5 = 100,000円
器具選定・配灯計画まで
施主(オーナー):1.0
一般消費者(施主・オーナー)の方 「基本設計費1800円/㎡」
実施設計まで含めた基本料金(基本設計費)
実施設計: 施工に必要な詳細図を含む設計図書。配灯位置や寸法の明記までを含みます。
例)100㎡ 1800×100×1.0 = 180,000円
インテリアプランニング
基本設計まで(器具選定)であれば × 0.7 126,000円
ダウンライト、スポットライト、間接照明の器具の種類の方向性だけであれば ×0.3 54,000円
エクステリアプランニング 「基本単価1,000円/㎡」
- 200㎡未満まで ×0.7
- 100㎡以上200㎡未満 ×0.6
- 200m以上500㎡未満 ×0.5
例)100㎡ 1000×100×0.5 = 50,000円
基本設計まで(器具選定)であれば × 0.7 189,000円
3. 現場監理費
施主・設計事務所・デザイン事務所・工務店など共通
- 現場での作業進捗確認、内装大工、電気工事業者との質疑応答。現場監督の補佐(代理業務)
- 竣工後、照明のライティング(シューティング)調整(照明器具の角度・向きの調整)
監理費:30,000/1回 ~
首都圏及び関東圏(千葉、埼玉、茨城、群馬)の交通費は無料。その他の地域は実費交通費を請求します。
4. リアル打合わせ(施主)
設計打合せに同席します
建築側の設計者、インテリアコーディネーターの方との打ち合わせの同席します。
対象:基本設計、実施設計をご依頼者
場所:建築業者の事務所など。基本的には出向きます。
目的:間接照明などの建築化照明の照明設計の考え方、収め方、配灯、調光制御など、建築設計と一体で考える要望項目を実現に向けて質疑応答します。空間設計に沿う照明計画を考えます。
同席打ち合わせ費:15,000/1時間
首都圏及び関東圏(千葉、埼玉、茨城、群馬)の交通費は無料。その他の地域は実費交通費を請求します。
